At NextDay Remodeling, we specialize in transforming homes to meet the evolving needs of our clients. This featured project in Alexandria, VA, was a comprehensive home addition and remodeling venture designed to maximize both square footage and functional flow.
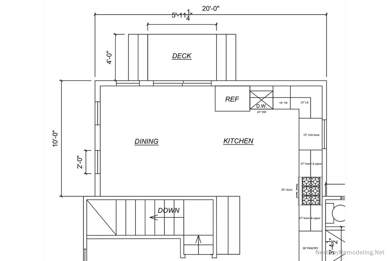
The primary goal was a full-home reconfiguration: the client needed to expand their master bathroom and add a dedicated guest bathroom. However, this was impossible to achieve within the existing space without cutting into the already small kitchen. To make this possible without sacrificing the kitchen, we designed a custom 10'x20' rear home addition to house a brand-new kitchen and dining room.
Foundation, Structural Integration, and Compliance
The project began with the demolition of an aging rear sunroom to make way for a permanent, code-compliant structure. Because this was a substantial 10'x20' expansion, we poured a full concrete foundation. Since this full-home remodeling project also involved basement finishing with a walk-out, we decided to integrate the addition's foundation with the new basement walk-out. One of the foundation walls serves a dual purpose as a heavy-duty retaining wall for the basement exit, optimizing both cost and structural integrity.
We opted for a 24” vented crawl space. While local building codes do not strictly require pressure-treated lumber for crawl space floor joists at this height, NextDay Remodeling chooses to use pressure-treated lumber for the entire floor deck anyway. This extra measure ensures maximum protection against wood decay and termite damage.
Crucially, every phase of this project was performed strictly to code. We managed all necessary permits and successfully passed every milestone inspection by local authorities, ensuring the structural integrity and safety of the entire home.
Creating an Open-Concept Flow
To seamlessly join the new living space with the original structure, we performed a precision saw-cut through the existing exterior brick. This partial load-bearing wall removal created a wide 9-foot opening, requiring professional shoring of the ceiling with temporary bracing and the installation of high-capacity LVL (Laminated Veneer Lumber) beams. This structural work allowed for a flush transition, making the new kitchen and dining area feel like a natural extension of the original home.
Interior Elegance and Exterior Functionality
The interior transformation is the "crown jewel" of this remodel. The relocated kitchen features:
- Custom Cabinetry: A sophisticated mix of white Shaker-style perimeter cabinets maximized for storage, paired with sleek matte black hardware.
- Designer Accents: A unique shiplap accent wall featuring three tiers of custom-stained thick wood shelving supported by industrial black pipe brackets.
- Premium Finishes: Stunning quartz countertops with elegant veining paired with a modern textured backsplash and stainless steel appliances.
- Natural Light & Outdoor Access: Large windows and glass doors flood the space with light. The doors lead directly to a new, intimate wood deck. This deck serves as a transition porch with custom railings, providing a stylish and functional exit from the addition to the backyard.
The Result
By moving the kitchen and dining areas into the new 200-square-foot addition, we successfully freed up the internal footprint of the house. This allowed for the massive master suite upgrade and guest bathroom the client desired.
This Alexandria project is a perfect example of how a strategic home addition can unlock a property’s full potential, combining smart engineering, full code compliance, and high-end aesthetic design.
Planning a Home Addition to Expand Your Living Space?
If your current layout is holding you back, it’s time to rethink what’s possible. Whether you need more room to cook, live, or relax, NextDay Remodeling has the expertise to expand your home seamlessly. Reach out today to start your transformation.





















