A vacant corner lot in Falls Church, VA. A bold architectural vision. And a home building team that knew exactly how to bring it to life. The result is this striking 6,000 sq ft new home construction in the heart of Bel Air — dark stacked stone, clean HardiPlank lines, floor-to-ceiling glazing, and a detached garage with ADU loft that looks like it belongs on the cover of a design magazine. Designed by Axis Architects, built by NextDay Remodeling. Scroll through the gallery and see what's inside.
Project at a Glance
- 3215 Cofer Rd., Falls Church, VA — Bel Air Subdivision;
- 6,000 sq ft · 3 levels + finished basement + ADU loft;
- 6 Bedrooms and 6 Full Bathrooms;
- 1/3-acre premium corner lot;
- Detached 2-car garage + 4-car driveway;
- Designed by Axis Architects;
- Built by NextDay Remodeling;
- Backed by a comprehensive Builder's Warranty;
- Completed 2025.
A Home Designed for Real Life
This property spans three fully finished levels plus a separate 400 sq ft ADU loft above the detached garage — thoughtfully laid out so every member of the household has space that feels like their own, while the home flows naturally for everyday living and entertaining.
Main Level — Where It All Comes Together
The open-concept main floor connects the living room, dining area, and kitchen in one seamless, light-filled space.
Living Room
- 10-ft inverted tray ceiling with integrated LED lighting;
- Bluetooth ceiling speakers;
- Custom electric fireplace accent wall;
- Direct access to Trex deck.
Gourmet Kitchen
- 10-ft waterfall quartz island;
- JennAir stainless steel appliances;
- Two-tone cabinetry + walk-in pantry;
- Sliding glass door to a second Trex deck.
Also on the main level: a private office, a guest bedroom with full bath, and a mudroom with a built-in bench and pet washing station — the kind of detail that only an experienced home builder thinks to include.
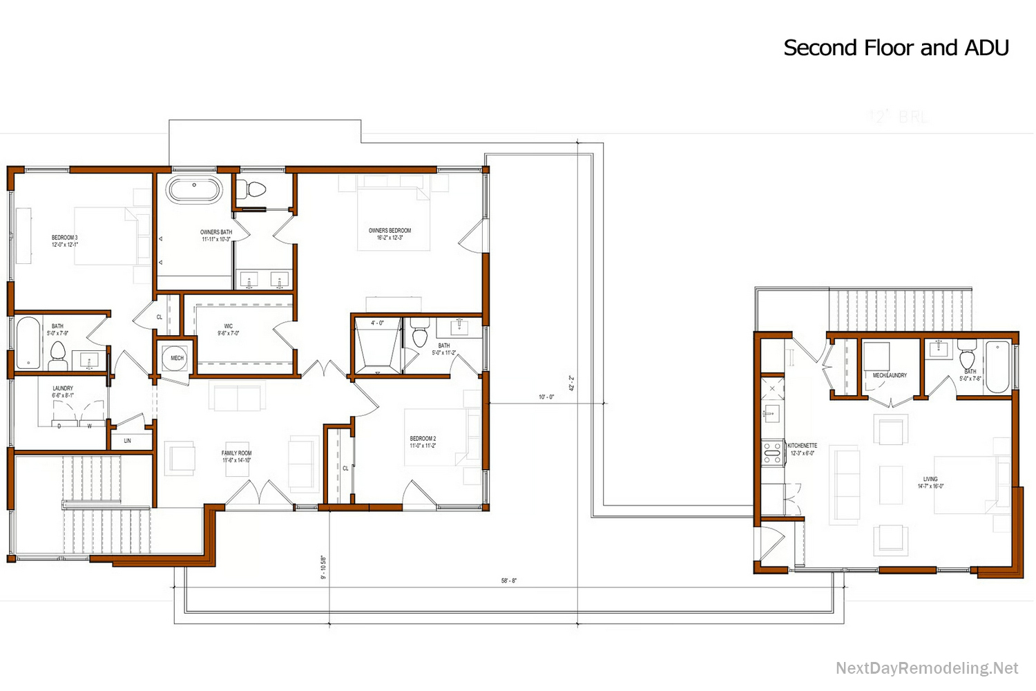
Upper Level — Rest, Recharge, Repeat
A dramatic floating staircase with a corner wall of windows leads to the upper floor.
- Family Room — vaulted 15-ft ceiling with skylights;
- Owner's Suite — floor-to-ceiling windows, soaking tub, frameless shower, walk-in closet, dry bar, and private balcony access;
- Two additional en-suite bedrooms;
- Dedicated laundry room.
Basement — More Than Extra Space
The fully finished basement is designed to adapt to how your family actually lives:
- Large recreation room;
- Dedicated gym;
- Wet bar kitchenette;
- En-suite bedroom;
- Walk-up stairs to the rear yard.
Whether it becomes an entertainment hub, a wellness space, or a private suite for guests — it's ready.
ADU Loft — A Home Above the Garage
Above the detached 22'×20' two-car garage sits a fully independent 400 sq ft apartment loft — one of the standout features of this home construction project.
- Living area (14'7" × 16'0");
- Kitchenette;
- Full bathroom;
- Laundry.
Ideal for extended family, a long-term guest, or a rental income stream. Managing a multi-structure build of this complexity — across three finished levels, a basement, and an independent ADU — is exactly the kind of challenge that defines our work as a home construction company.
Built by NextDay Remodeling — From First Stake to Final Walkthrough
NextDay Remodeling is a fully licensed and insured General Contractor specializing in custom home building and full home remodeling across Alexandria, Arlington, Falls Church, and the surrounding areas throughout Northern Virginia.
This project reflects the true standard of a professional GC: one team, one point of accountability, from breaking ground to handing over the keys. Our approach to home construction combines architectural precision, transparent communication, and skilled trades who take pride in every detail. Whether we are building a new residence with an ADU or executing a large-scale renovation, every decision (from foundation type to finish selection) is made with the future homeowner in mind.
Throughout the entire build, all work was carried out in full compliance with local building codes. Every phase passed official inspections ( structural, mechanical, electrical, and plumbin) providing the homeowner with a clean permit history and complete peace of mind. No shortcuts. No grey areas. Everything by the book. That is the NextDay Remodeling standard.
Ready to Build Your Custom Home?
Your vision deserves the right home building contractor. Every great home starts with a team that listens, plans carefully, and delivers without compromise. Whether you're just starting to explore ideas or ready to break ground — NextDay Remodeling is here to guide you through every phase of new home construction, from concept to completion.



































